Аккумуляторные батареи совместно с ИБП серии CM И SM предназначены для систем трехфазного электропитания серверных, ЦОД, защиты промышленного и медицинского оборудования от перебоев в работе электросети, перепадов и искажений напряжения и частоты, импульсных и высокочастотных помех. Использование батарейных кабинетов требует инженерного подхода и соблюдения многочисленных регламентов при эксплуатации и хранении. Кроме этого, для снижения рисков, связанных с поражением электрическим током и отказом оборудования и вмешательства в работу некомпетентных лиц, необходимо организовать защиту аккумуляторов от несанкционированного вмешательства. Все эти задачи можно решить применением специальных аккумуляторных шкафов SNR.
Особенности аккумуляторного шкафа:
- Наличие отсека для батарейного размыкателя/автоматического выключателя.
- Наличие рым-болтов для проведения такелажных работ.
- Обработка краев всех металлических деталей и отсутствие острых и режущих кромок.
- Наличие заземления для всех металлических частей шкафа.
- Межполочные расстояния в 375 мм для монтажа высоких аккумуляторных батарей.
- Надёжная цельносварная конструкция, выдерживающая нагрузку 40 аккумуляторов до 200 Ач.
- Наличие вентиляционных отверстий для обеспечения естественной конвекции в конструктиве.
- Встроенные замки для предотвращения доступа к оборудованию некомпетентного персонала.
- Двухстворчатые двери позволяют использовать шкаф при ограниченном пространстве с лицевой стороны.
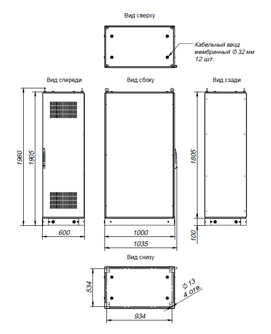
- Ввод силового кабеля осуществляется снизу либо сверху шкафа, для чего предусмотрены специальные полупробивные кабельные отверстия.
- Возможность установить межярусные перемычки заранее. Для заказа сообщите пиковую мощность нагрузки, количество, тип и емкость батарей для расчета необходимого сечения перемычек (возможно заказать аккумуляторный шкаф без перемычек - укажите при заказе).

Вместимость стеллажей
| Стеллаж/АКБ | B12040GP | B12050FT | B12050GP | B12085GP | B12100FT | B12100GP | B12120GP | B12135FTHR | B12150FT | B12200FT | B12200FTHR | B12200GP |
| SNR-UPS-BCT-127906-2 | 16 | 16 | ||||||||||
| SNR-UPS-BCT-190610-5 | 20 | 40 | 20 | |||||||||
| SNR-UPS-BCT-201208-10 | 40 | 40 | 40 | 40 | 40 | |||||||
| SNR-UPS-RACK-061305-2 | 20 | |||||||||||
| SNR-UPS-RACK-080610-2 | 20 | 20 | ||||||||||
| SNR-UPS-RACK-080810-2 | 20 | 20 | 20 | 20 | ||||||||
| SNR-UPS-RACK-160610-4 | 20 | |||||||||||
| SNR-UPS-RACK-180610-4 | 40 | 20 | 40 | 20 | 20 | 20 | 20 | |||||
| SNR-UPS-RACK-180806-4 | 20 | 20 | 20 | 20 | 20 | |||||||
| SNR-UPS-RACK-181006-5 | 20 | |||||||||||
| SNR-UPS-RACK-257012-5 | 40 | 40 | 20 | 20 | 40 | 20 | 20 | 20 | 20 |
| Общие | |
|---|---|
| Тип аккумуляторного шкафа | Закрытый шкаф АКБ |
| Высота мм | 1900 |
| Глубина ,мм | 1000 |
| Нагрузочная способность, кг | 800 |
| Ширина | 600 |
| Цвет | Чёрный |
| АКБ | 50 Ач ФТ |